OG视讯

迎接接见OG视讯官方网站!

行业新闻

秉持着坚吃旆质、责任、精新、执着的理想,致力成为您中意的合作同伴

您当前地点的地位:首页 > 新闻资讯 > 行业新闻

终于装建落成,不由得晒晒,全屋定造柜子很中意,电视墙出格实用 颁布功夫:2023-05-11   浏览:1507次
终于装建落成,不由得晒晒,全屋定造柜子很中意,电视墙出格实用

  我家这套新房是交给在装建公司做设计师的表哥装建,主材都是老公掌管买的,平时我有功夫也会到工地监工 。从七月中旬开工到此刻,终于装建落成,值得说的就是全屋定造柜子很中意,家里的鞋柜啊、衣柜啊、酒柜等等做出来的成效很美丽 。设计的客厅电视布景墙出格实用,家里半点空间都没有浪费,不由得给各人晒晒!

u=2582398265,1183935106&fm=173&app=49&f=JPEG?w=640&h=448&s=1EAA702381CE60EA0EFCF1CA0000E0B1

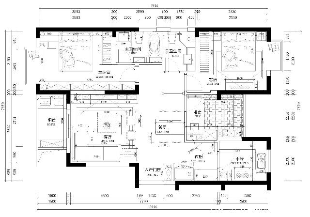
  这是OG视讯家具平面安插图,表哥凭据OG视讯需要设计出来的,整体的布局都比力合理,很喜欢 。

u=3403590158,1307209480&fm=173&app=49&f=JPEG?w=640&h=853&s=21819C5F966D651FC39151600300E010

  这是我们家的入户鞋柜,鞋柜分为高低两层,中央留空地位思考到放家里的钥匙 。鞋柜下面也是留空地位,平时常穿的鞋子,就能够直接放下面了 。鞋柜是定造的,柜门还没有装置的成效,工人是在施工呢!

u=2179220076,3879443087&fm=173&app=49&f=JPEG?w=450&h=600&s=A11252DFCCEEA33EC01C51CB0100E090

  鞋柜中央做了挂钩,平时能够挂一些幼的包包,或者帽子很方便 。

u=120890743,753927751&fm=173&app=49&f=JPEG?w=640&h=959&s=D223924554074B4F08BD38F103008031

  从新房开工那天起,就一向渴望着能早点装建落成,此刻终于装建落成了,切实开心啊 。这边是入户进来的视角,右边是鞋柜,再往里面就是餐厅,我们家就是这样的户型格局 。全屋地面出了厨房,卫生间和阳台之表,其他的空间地面都是铺木地板,比瓷砖的成效美丽多了 。

u=2230088572,2839623364&fm=173&app=49&f=JPEG?w=640&h=480&s=D13A3AD74E1B7ACC74819D6103004031

  这边是餐厅,餐桌是能够折叠起来的那种 。平时家里没有客人来的时辰,我们就使用方形的餐桌;家里来客人,人多的时辰就能够弄成圆形的,出格方便 。餐桌椅是布艺斑纹,十吩殳亮,坐着也很舒服 。

u=2330246807,283824819&fm=173&app=49&f=JPEG?w=640&h=853&s=92125E874E0F614D561B8D7B0300403B

  想要圆形的餐桌显得更大气一些,出格是冬天打火锅的时辰就比力方便了!后面做了一个雕花隔断,其实就是当初卫生间,门正对着餐厅,十吩殳亮,并且也很实用 。雕花是在名义定造的,质量很不错呢!

  餐桌上安插一些软装,成效很有档次 。其实表哥是为了达到更美丽的成效,专门安插餐桌上这些器材做装璜 。

u=2880022486,2113406631&fm=173&app=49&f=JPEG?w=640&h=427&s=58238351061047DC4A3D3D6603008060

  新房装建简欧风格,出格喜欢餐桌上的划分,绿色的十吩殳亮!

u=3682700133,3397463633&fm=173&app=49&f=JPEG?w=640&h=427&s=D2383EC562134BDE0E8DED7B0300507B

  这边是客厅,窗帘后面有一个独立的生涯阳台,采光出格充足,空间显得也比力大气一些 。欧式的客厅家具极度大气,地面还放着地毯,极度有档次 。

u=395144852,4053133652&fm=173&app=49&f=JPEG?w=640&h=427&s=923A7E85665373CED0A588610300707B

  客厅电视布景墙打满柜子出格实用,思考到我们家的面积比力幼一些,并且全屋的柜子都是定造的,所以客厅电视布景墙也是定造了柜子,中央留空地位刚好能够放电视机 。以来入住新房了,有这样一个极度大的柜子,能够提供蛮不错的储物空间,我们也没有必要不安以来入住新房,不安没有柜子而装器材而烦恼了!

u=4069910391,3148494500&fm=173&app=49&f=JPEG?w=640&h=427&s=771314C1AE6C1E1F8DF9243703005042

  客厅电视布景墙做了柜子式的,既能够提供储物空间,并且还能够当做布景墙使用 。一些还没有装建的伴侣过来参观,见到我们家客厅电视布景墙做满了柜子,都很羡慕 。有的邻居还说以来家里的电视墙,也要学我家这样呢!全屋的柜子都是在名义定造的,蕴含此刻这个客厅电视布景墙的柜子,出格中意 。

u=2999634755,3376266799&fm=173&app=49&f=JPEG?w=640&h=427&s=E512579561C3D94F10257D650300C072

  这边是客厅和餐厅全景成效,整体的都极度合理,一眼望去中意就是客厅电视布景墙的设计,家里半点空间都舍得不得浪费啊 。

u=4052224558,303772615&fm=173&app=49&f=JPEG?w=640&h=427&s=C33B16C554035F490839E17D03009033

  新房的软装,老公都是凭据表哥的建议去买的,买回来之后表哥自己搭配,说切真话的真的劳累他了!沙发墙上挂着三幅装璜画,十吩殳亮,与整个空间都很搭配呢!

u=3347740456,3061072171&fm=173&app=49&f=JPEG?w=640&h=959&s=31A1DB11621669DEC92570E10300E030

  这边是次卧,给女儿筹备的房间 ?占浔攘τ,做了一个极度实用的榻榻米 。榻榻米也是定造的,出格中意,质量与做工都很不错 。

u=3709863628,3186361292&fm=173&app=49&f=JPEG?w=640&h=427&s=8D0A337D4B01725F1E2101E50300C023

  床被套类似一个幼白兔的造型,非?砂 。

u=3935585790,1951363700&fm=173&app=49&f=JPEG?w=640&h=427&s=8C1B83550BA3452E103DA5FA03004033

  这边是次卧,白色的衣柜也是定造的,我们都很喜欢 。衣柜上面做了中 央空调,使用的时辰比力方便 。顶面贴石膏线条 。

u=1453069936,3926804445&fm=173&app=49&f=JPEG?w=640&h=427&s=7D2382535E46525F1C34A5D60300E032

  有个飘窗蛮不错的,采光也比力好!飘窗上面放着坐垫,以来入住了能够坐在飘窗上看书,或者玩玩手机 。

u=923124559,598257219&fm=173&app=49&f=JPEG?w=640&h=427&s=8E33C201D3556C7F4F9555CB0300B0B0

  这边是主卧,我和老公的房间 。卧室的装建都是一样的,右边定造了一排极度大气的衣柜,储物空间太充足啦,显得也很大气呢!床头布景墙挂着OG视讯装璜画,能够起到很好看的装璜成效 。

u=1877335241,2383080743&fm=173&app=49&f=JPEG?w=640&h=590&s=5133A37529565A5F4CA880FF0300C021

  给各人看下我们家全屋定造的衣柜,太美丽,台上档次啦!

u=1548291814,4182683838&fm=173&app=49&f=JPEG?w=640&h=427&s=E101D11346055B491C0C3CC70300E0A1

  床头旁边做了梳妆台,上面做了吊柜,也很实用 。

u=3062366237,1492455574&fm=173&app=49&f=JPEG?w=640&h=959&s=B984CB1466465F5FCE2439EE03007030

  这边是厨房,门口还定造了高低两层的柜子呢,出格喜欢 。家里只有有空位,我们都不浪费,都定造了柜子 。

u=3882236020,2925328457&fm=173&app=49&f=JPEG?w=640&h=959&s=31315B916E175DDA5A2118C003007030

  厨房空间蛮幼的,定造了“U”字形的橱柜 。

u=1337031272,808780177&fm=173&app=49&f=JPEG?w=640&h=959&s=2100D81173465F5F022DED710300B030

  这边是主卧卫生间,布局极度合理,装建也很美丽 。做了圆弧形的干湿分离,出格大气 。

u=1694945062,1615495162&fm=173&app=49&f=JPEG?w=640&h=853&s=008B915D4A267B1D5488887503000073

  这边是公共卫生间,也是做干湿分离,马桶的格局极度喜欢 。终于装建落成,不由得晒晒,全屋定造柜子很中意,客厅电视布景墙出格实用!极度感激表哥助我们装建与设计那么美丽的新房,全屋装建都极度中意 。装建这段功夫也劳累老公了,家里的主材都是他买的 。我们筹算透风到月底就能够搬进来入住啦,真的十吩熠待!今天就分享到这里啦,但愿我们家的装建,能给各人带来好的装建灵感!


  • 400-999-1569
    一键拨号
  • 短信征询
    短信征询
  • 查看地图
    查看地图
  • 【网站地图】